Hotel na plaži s pogledom na more – prvi red do mora!
Top investicija na jednoj od najpoželjnijih lokacija u Splitu – odmah uz more, u Bačvicama. Nekretnina se nalazi u...
2.440.000€
Split
23251 Kolan, Mandre, Hrvatska
Na prodaju
429.000€


































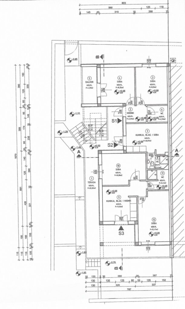
Nach Südwesten ausgerichtete Doppelhaushälfte mit neun Wohneinheiten und der Möglichkeit im Sommer an Touristen zu vermieten.
Auf jeder Etage befinden sich drei unterschiedlich grosse Appartements:
– Appartement (S1), bestehend aus Wohn-/Essbereich mit Küche, einem Schlafzimmer und Bad.
– Einraumappartement (S2), bestehend aus einem Wohn-/Schlafraum mit Bad.
– Grosses Appartement (S3), bestehend aus Wohn-/Essbereich mit Küche, zwei Schlafzimmern und Bad.
Alle Appartements sind von ihren jeweiligen Balkonen aus via Außentreppe separat zugänglich.
Eine Dachterrasse bietet die Möglichkeit eines ungestörten Aufenthaltes mit grandiosem Blick zum Meer und über die gesamte Ortschaft.
Im Erdgeschoss des Hauses befindet sich eine grosse Garage mit gefliestem Boden, die auch anderweitig nutzbar wäre, z.B. als Gemeinschafts- oder Partyraum. Ein Duschbad mit WC ist zudem hier untergebracht.
Ortschaft im Süden der Insel Pag.
Pag befindet sich ca. 50 km nördlich von Zadar und hat Brückenanbindung an das Festland.
Bis zum Strand sind es nur 100 m. Einkaufsmöglichkeiten finden sich in unmittelbarer Nähe.
Das Haus wird versorgt mit Fernwasser, welches über eine Solaranlage gewärmt wird. Zudem ist auch eine Wasserzisterne vorhanden.
Abwasser wird über eine Septikgrube entsorgt.
Das Objekt ist an das Stromnetz angeschlossen und verfügt über Telefon- und Sat-TV-Anschluss.
Es besteht die Möglichkeit angrenzend ein ca. 100 m² großes Grundstück zu erwerben. Zusätzliche PKW-Stellplätze könnten damit angeboten werden.
Kaufpreis für dieses Grundstück nach Vereinbarung.





Top investicija na jednoj od najpoželjnijih lokacija u Splitu – odmah uz more, u Bačvicama. Nekretnina se nalazi u...
2.440.000€





Modernizirana samostojeća kuća u ekskluzivnom predgrađu vile, u trećem redu do mora. Površina od 286 m² proteže...
600.000€
Šarmantna kamena kuća s uređenom okućnicom na mirnoj lokaciji
Owning a home is a keystone of wealth… both financial affluence and emotional security.
Suze Orman