Kuća u nizu u centru starog grada Zadra, tri etaže sa dvorišnom oazom
Kuća na tri stambene etaže u središtu povijesne jezgre grada Zadra, samo nekoliko koraka od tržnice i svih ostalih...
460.000€
Zadar
23235 Vrsi, Hrvatska
439.000€




























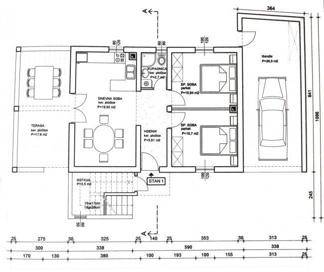
Dieses sehr gepflegte, weiße Zweifamilienhaus ist für ein bis zwei Familien oder zum teilweisen Vermieten gedacht. Pro Wohneinheit, die separat von außen zugänglich sind, stehen ein Wohnzimmer mit offener Küche, zwei Schlafzimmer und ein Bad zur Verfügung. Ebenso bietet jedes Stockwerk eine geräumige, überdachte Terrasse. Die Nutzfläche für das komplette Haus beträgt ca. 179 m². Besonders vom oberen Stockwerk hat man einen schönen Blick zum nur ca. 500 m entfernten Meer.
Das Auto kann in der Garage untergebracht werden, ein zweites Auto davor. Wer möchte kann die Garage jedoch auch zu weiterem Wohnraum ausbauen. Strom und SAT-TV sind angeschlossen, Wasser kommt aus einem Brunnen. Das Abwasser wird in der Septikgrube gesammelt.
In der Mitte des 2289 m² großen Grundstücks befindet sich eine Gartenlaube welche im Sommer bisher an Touristen vermietet wurde und als zusätzliche Einnahmequelle dienen kann.
Auf dem Grund sind herrliche Olivenbäume, Feigenbäume, Tomaten, Paprika etc. angebaut.
Das Ortszentrum ist ca. 1,3 km entfernt. Einkaufsmöglichkeiten sowie ein Café/Restaurant sind fußläufig zu erreichen (Entfernung ca. 700 m)
Ca. 18 km nördlich von Zadar





Kuća na tri stambene etaže u središtu povijesne jezgre grada Zadra, samo nekoliko koraka od tržnice i svih ostalih...
460.000€





Ovdje se prodaje zgrada sa više mogućnosti kupnje. Trenutno je moguće kupiti kuću kao cjelinu za 1.040.000 €....
260.000€
Građevinsko zemljište od 463 m² u drugi red do mora, uz građevinsku dozvolu i građevinski projekt!
Owning a home is a keystone of wealth… both financial affluence and emotional security.
Suze Orman